


92 208 ₽/м²
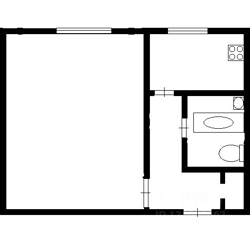
Я СОБСТВЕННИК! Продаю уютную однокомнатная квартира площадью 24 кв. м в кирпичном доме 1978 года постройки. Квартира расположена на 2-м этаже 5-этажного дома, что идеально подойдет для комфортного проживания. Высота потолков составляет 2.6 метра, окна выходят во двор. Микрорайон тихий. В квартире сделан косметический ремонт, который позволяет сразу заехать и жить. Жилая площадь 12 кв. м и кухня площадью 4 кв. м. Французский балкон. Квартира продается с мебелью и техникой, посудой, что позволяет сразу заехать. Дом в хорошем состоянии, с наземной парковкой. Кирпичные стены обеспечивают тепло зимой и прохладу летом. Рядом с домом находятся магазины, школа, сад, парк, Завод "ЛИАЗ", ж\д станция. Хорошее транспортное сообщение. Документы готовы к сделке, ипотека возможна, также покупка с применением капитала. Просмотр по согласованию. Прошу звонить с 10.00 до 20.00 Продам вторичное жильё до 4 млн рублей в Ликино-Дулево.























































































